JOLI IMMEUBLE DE RAPPORT VILLEMUR-SUR-TARN
VILLEMUR SUR TARN 31340
260 000 € *
* Honoraires à la charge du vendeur
Proposé par votre agence :
8 place du 11 novembre 1918
31620 FRONTON
Réf : 7284
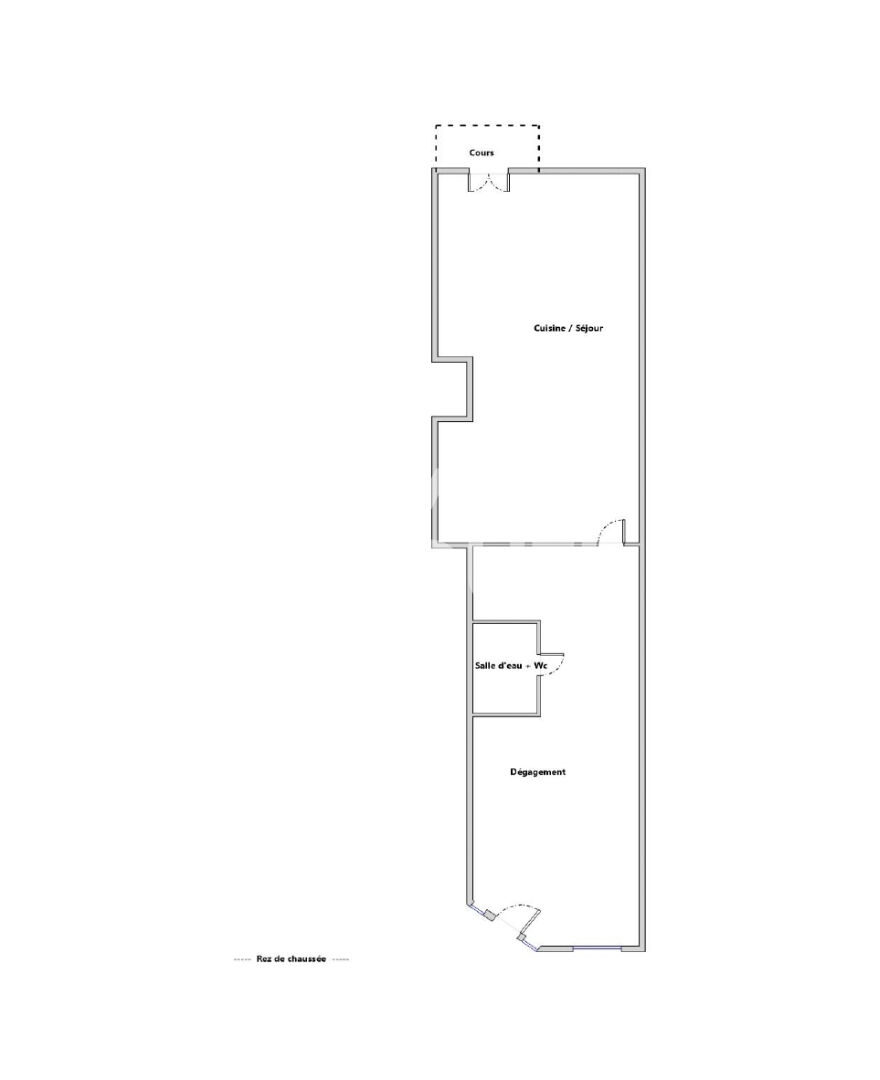
Immeuble de rapport en bon état intérieur comme extérieur comprenant 4 appartements récemment rénovés.
Situé au coeur de Villemur-sur-Tarn, cet immeuble offre une opportunité rare pour un investissement locatif sécurisé et rentable.
Composition... Voir plus
174 m²
6 pièce(s)
JOLI IMMEUBLE DE RAPPORT VILLEMUR-SUR-TARN
Descriptif
Réf : 7284
Immeuble de rapport en bon état intérieur comme extérieur comprenant 4 appartements récemment rénovés.
Situé au coeur de Villemur-sur-Tarn, cet immeuble offre une opportunité rare pour un investissement locatif sécurisé et rentable.
Composition... Voir plus
174 m²
6 pièce(s)
Fiche technique du bien
Bilan énergétique
Logement extrêmement performant
Logement extrêmement peu performant
passoire énergétique
consommation (énergie primaire)
185
kWh/m².an
émissions (gaz à effet de serre)
5*
kg CO₂/m².an
* Dont émissions de gaz à effet de serre
peu d'émissions de CO₂
émissions de CO₂ très importantes
5
kg CO₂/m².an
Les informations sur les risques auxquels ce bien est exposé sont disponibles sur le site Géorisques : www.georisques.gouv.fr
Estimation du coût annuel en énergie pour un usage standard entre 600€ et 860€ au 01/01/2021
Simuler votre prêt immobilier avec notre partenaire
Le quartier
Les horaires
Lundi
09h00 - 12h00 / 14h00 - 18h00
Mardi
09h00 - 12h00 / 14h00 - 18h00
Mercredi
09h00 - 12h00 / 14h00 - 18h00
Jeudi
09h00 - 12h00 / 14h00 - 18h00
Vendredi
09h00 - 12h00 / 14h00 - 18h00
Samedi
09h00 - 12h00
Dimanche
Fermé
